
Nemesvámos új központja
A bevásárlópark olyan üzleteket és szolgáltatásokat hoz el, amiért korábban Veszprémbe kellett utazni
Üzletek és szolgáltatások teszik könnyebbé és kellemesebbé az itt lakók életét
Az új :PARKSHOP Bevásárlópark otthont ad egy szupermarketnek, drogériának, lakberendezési üzletnek és iparcikk üzletnek, valamint egy kávézónak.
Kényelmes parkoló 101 autónak, 4 állásos elektromos villámtöltővel
A bevásárlópark kialakításánál arra törekedtünk, hogy a vásárlóink kényelmesen juthassanak el az üzletekig, kényelmesen, az üzletekhez közel leparkolva az autójukat biztonságban tudva nyugodtan intézhessék bevásárlásukat.
Látványtervek
A legfrissebb képeink az épülő :PARKSHOP bevásárlóparkról
Szolgáltatások
A :PARKSHOP Bevásárlópark minden szükséges körülményt biztosít a vásárláshoz és a vásárlók magas színvonalú kiszolgálásához egyaránt.

Vásárlói parkoló

Nagy alapterületű üzletek

Bankautomata

Elektromos autó töltő

Ingyen internet

Akadálytalan szállítás
A :PARKSHOP környezete
Nemesvámoson a gazdaság legkülönbözőbb területeit képviselő üzemek vannak jelen, 8 nagy és közel 270 kisebb vállalkozás működik itt. A településen jelentős ipari tevékenység folyik, a település munkahelyekben kiemelkedően gazdag. A :PARKSHOP Bevásárlópark a legjelentősebb munkáltatók közelében helyezkedik el, az újonnan épült lakónegyed szomszédságában. Nemesvámos vonzáskörzetében 10.449-en élnek.


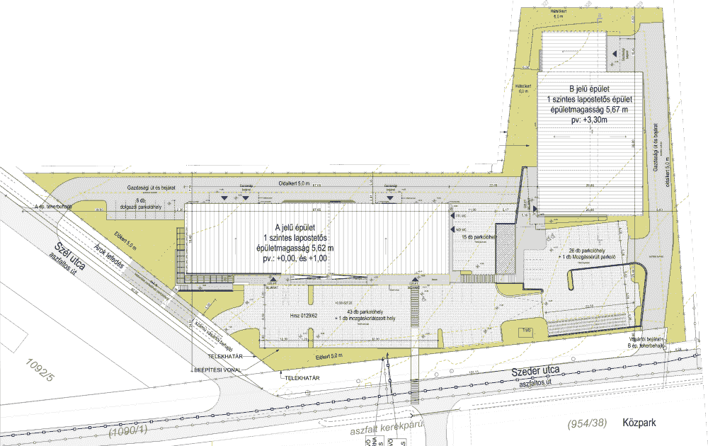
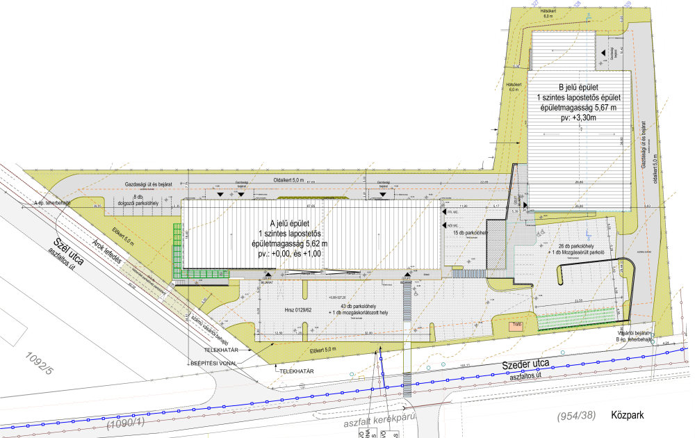
A :PARKSHOP üzleteinek elrendezése
A bevásárlópark két fő épületből áll. A terület magasabban, a Szeder utca szintjén elhelyezkedő részén álló 830 m2 alapterületű épületben lesz a szupermarket (B jelű épület), különálló 26 férőhelyes (+1 mozgássérült) parkolóval.
A Szél utca szintjén fekszik a park másik épület tömbje, amelyben több üzlethelyiség kerül kialakításra (A jelű épület) 43 (+1 mozgássérült) parkolóval
Az üzletek előtt összesen 69 (+2) parkoló várja a vásárlókat. Az áruszállításra minkét épület mellett külön szállítási útvonal kerül kialakításra.

Rólunk
A befektetőink
Küldetésünk
Karrier
Adatvédelmi tájékoztató
Felhasználási feltételek
Cím
8248 Nemesvámos,
Szél utca - Szeder utca sarok
Üzletek
Az adatok feltöltése később
© 2025-2026 | :PARKSHOP Bevásárlópark | Minden jog fenntartva








